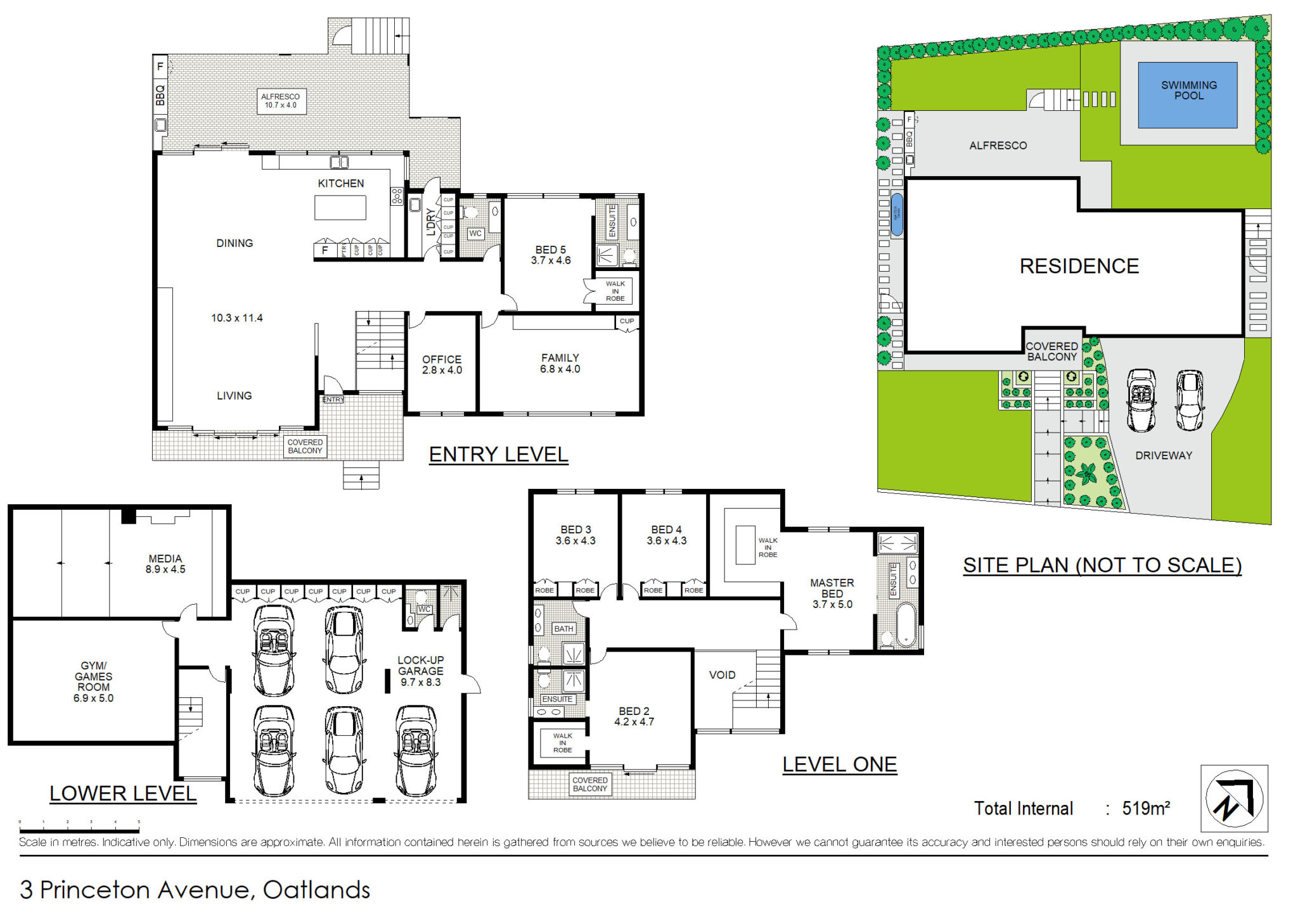
6 Beds
5 Baths
4 Parkings
Lifestyle distinction & exceptional luxury in a blue-ribbon setting.
With its stunning street appeal and high-side position in an exclusive avenue, this brand new, double brick and concrete home is the pinnacle of unparalleled luxury, outstanding design and family excellence. The perfect due north aspect is capitalised upon with dramatic walls of glass at the entry spilling in the light. Opulence abounds from the architectural lighting to the lavish kitchen and fully appointed theatre that delivers a cinema experience at home. Entertain in style on the expansive rear terrace with outdoor kitchen overlooking the pool and beautifully landscaped gardens. A wealth of accommodation includes three master suites with ensuites making it ideal for an extended family situation. Enjoy the added decadence of a 5 plus car garage. The exclusive address rests moments to the bus, prestigious schools, Oatlands Golf Club, Burnside Public School and local shops.
– Dramatic from the street, stunning architectural design, substantial
– Galleries of glass frame the entrance of the home, imported tiling
– Cantilevered staircase, designer + statement lighting, ducted a/c
– Expansive L shaped living + dining rooms, superb custom cabinetry
– Sliders open to the front balcony + the substantial alfresco terrace
– Thick stone wrapped kitchen, island bench, integrated fridge/freezer
– Gas cooktop, outdoor kitchen with barbecue overlooks the pool
– Large family room, private guest retreat with a WIR + luxe ensuite
– Home theatre with cinema seating, sound, screen, bar + projector
– Large games room or gym, four deluxe upper level bedroom suites
– Two further beds with ensuite, custom robes, stunning bathrooms
– Grand master with a deluxe walk-in robe, ensuite + a balcony
– Internal access vast 5 plus car garage, full bathroom in the garage
– Fully automated smart home system, wi-fi phone & gadget control
– CCTV security system, superb landscaping, abundance of storage
– Moments to local village shops, vibrant cafés, parks + playing fields
– Close to The King’s School, Tara, James Ruse + Oatlands Public School
– Walk to buses + popular Oatlands Golf Club, close to main arterial roads
– Moments to Parramatta CBD + vibrant Westfield shopping precinct
You Might Also Like...